0

Rogny-les-Sept-Écluses (89220)
Maison d'habitation avec jardin sans travaux

  • à propos de ce
    bien

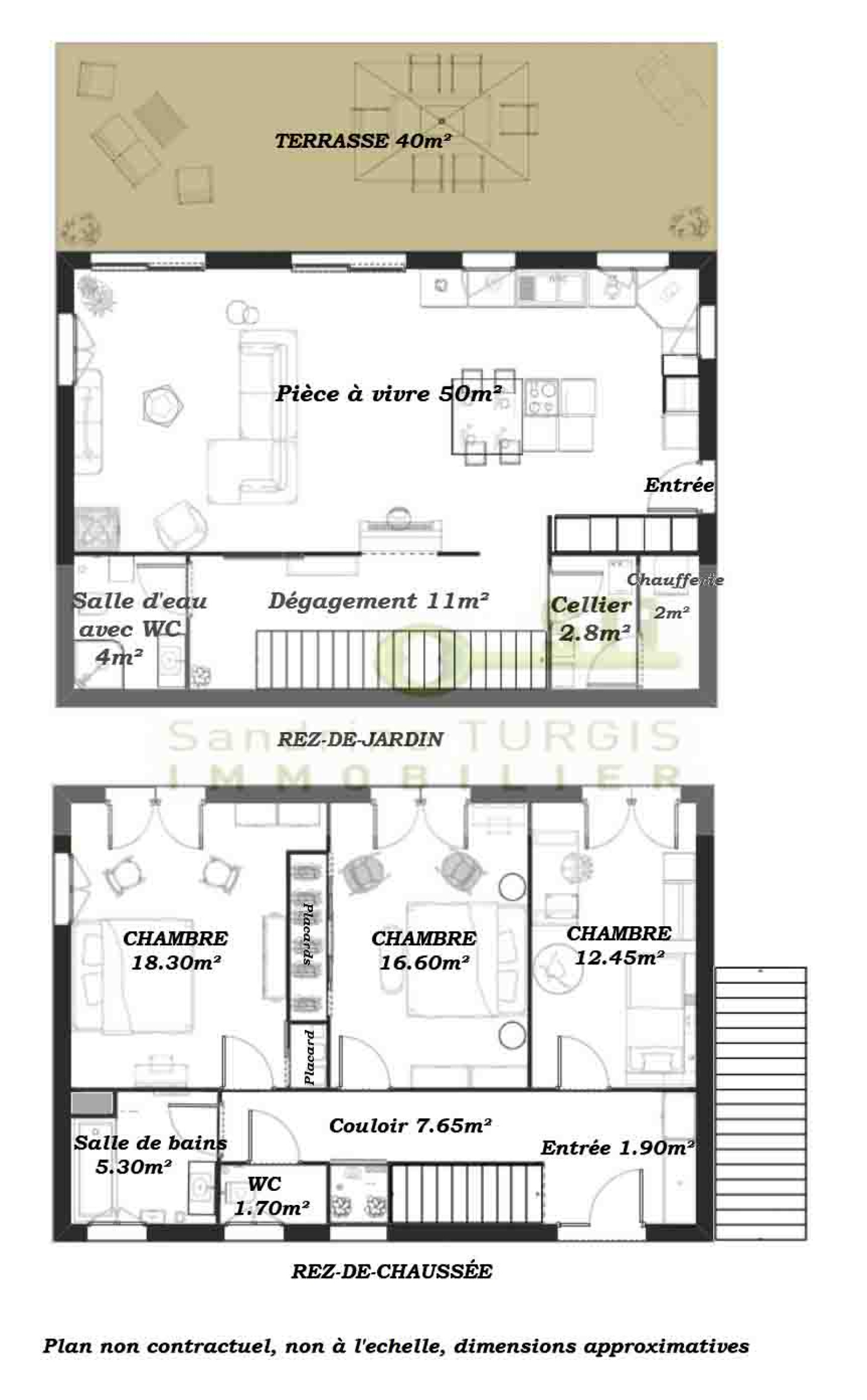
    ROGNY LES SEPT ECLUSES! A moins de 2h de Paris. Située dans ce charmant village traversé par le canal de Briare découvrez cette belle et confortable maison d'environ 134m² nichée sur son beau terrain avec vue dégagée sur le jardin et un bois offrant au rez-de-jardin: entrée sur une vaste et lumineuse pièce à vivre d'environ 50m² avec son espace cuisine aménagée/équipée (four, plaque, hotte, lave-vaisselle, réfrigérateur) et son poêle à bois, dégagement, cellier/buanderie, chaufferie, salle d'eau avec WC, puis au rez-de-chaussée: entrée, couloir desservant 3 chambres dont 2 avec placards, salle de bains et WC séparés. A l'extérieur: dépendance attenante, terrasse avec barbecue, bûcher et abri de jardin. Le tout sur un beau jardin clos d'environ 2720 m² avec verger (pommier, cerisier, prunier, pêcher, poirier...) et espace potager. Les atouts: double vitrage PVC avec volets roulants manuels, isolation des combles récente et pompe à chaleur vous assure un confort thermique indéniable! Reliée au tout à l'égout. N'hésitez plus pour avoir des informations complémentaires ou prendre un rendez-vous de visite à contacter l'agence. Visite virtuelle offerte! “Les informations sur les risques auxquels ce bien est exposé sont disponibles sur le site Géorisques http://www.georisques.gouv.fr”.

    • Prix
      187 000 €
    • Code postal
      89220
    • Surface habitable (m²)
      134 m²
    • surface terrain
      2 716 m²
    • Nombre de chambre(s)
      3
    • Nombre de pièces
      6
    • Nombre de niveaux
      2
    • Vue
      Jardin
    • Références
      2789
  • Plus d'informations
    financières

    • Prix de vente
      187 000 €
    • Les honoraires d'agence seront intégralement à la charge du vendeur
       
    • Taxe foncière annuelle
      1 100 €
  • Plus de
    détails

    • Nb de salle de bains
      1
    • Nb de salle d'eau
      1
    • Cuisine
      Américaine
    • Type de cuisine
      Equipée
    • Mode de chauffage
      Pompe à chaleur, Bois
    • Type de chauffage
      Radiateur, Poêle
    • Format de chauffage
      Central, Individuel
    • Terrasse
      OUI
    • Exposition
      Est-Ouest
    • Année de construction
      1974
    • Terrain arboré
      OUI
  • la
    copropriété

    • Copropriété
      NON
  • Plus d'informations sur
    le quartier

    • Commerces et santé
    • Loisirs
    • Ecoles
    • Transports
    • Pratique
  • Bilan
    énergétique

    DPE GES

    Montant estimé des dépenses annuelles d'énergie pour un usage standard est compris entre 860 € et 1 210 € . Prix moyens des énergies indexés sur les années 2021, 2022 et 2023 (abonnements compris).

Ce bien
m'intéresse

Nos outils