0

Châtillon-Coligny (45230)
 MAISON PROCHE CENTRE VILLE

  • à propos de ce
    bien

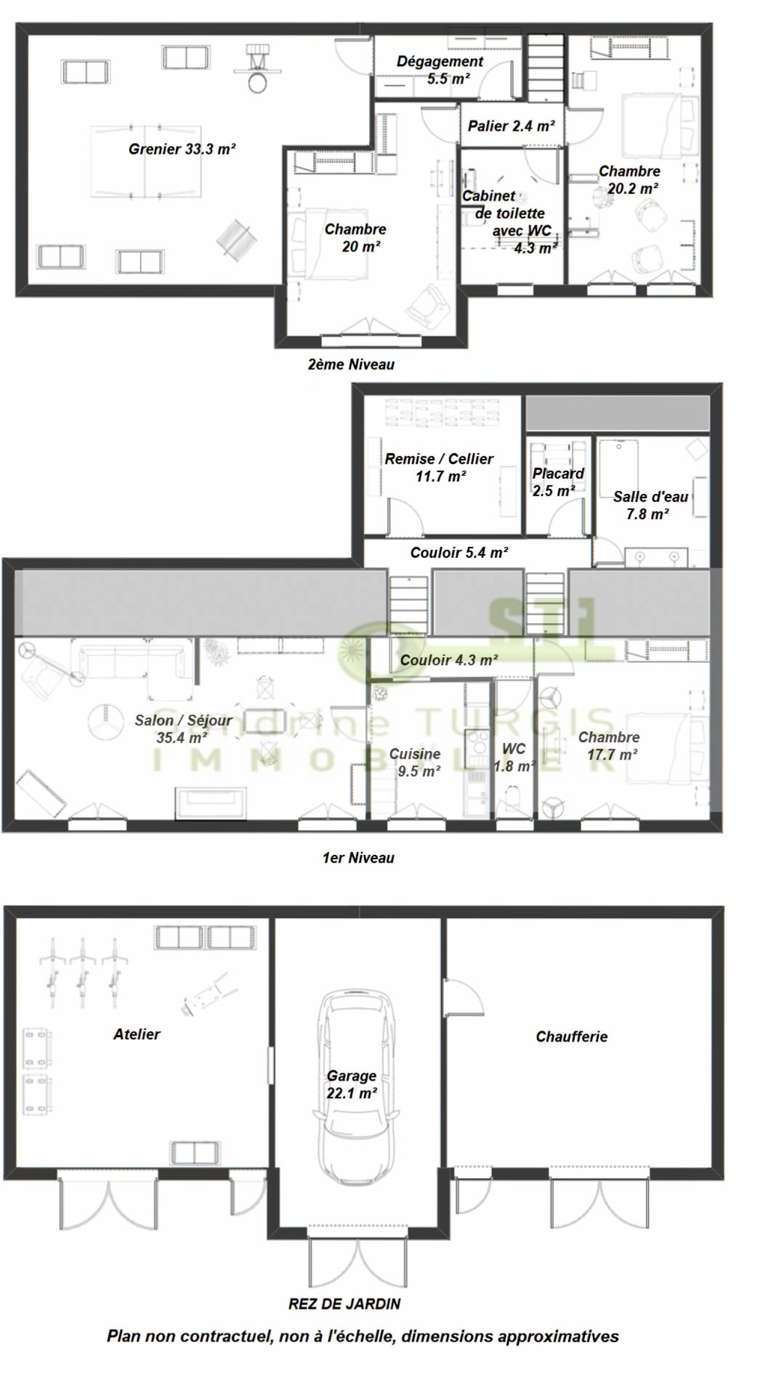
    Châtillon Coligny! Laissez vous séduire par cette maison de caractère offrant de beaux volumes et située dans un bel environnement au calme non loin de toutes commodités à pied offrant au 1er niveau: cuisine aménagée, salon avec cheminée insert, chambre, cellier, salle d'eau et WC séparés. Au 2ème niveau: palier desservant deux chambres, salle de bains avec WC, dégagement menant à un grenier aménageable d'environ 33m². Au rez-de-jardin: garage, atelier et chaufferie. A l'extérieur: Atelier et abris de jardin. Chauffage centrale au fioul. Double vitrage. Toiture en bon état. Assainnissement individuel (micro-station). Le tout sur un terrain d'environ 500m². N'hésitez plus et contactez l'agence pour un rendez-vous de visite! "Les informations sur les risques auxquels ce bien est exposé sont disponibles sur le site Géorisques https://www.géorisques.gouv.fr"

    • Prix
      146 000 €
    • Code postal
      45230
    • Surface habitable (m²)
      146 m²
    • surface terrain
      500 m²
    • Nombre de chambre(s)
      3
    • Nombre de pièces
      6
    • Nombre de niveaux
      2
    • Vue
      Bois
    • Références
      2796
  • Plus d'informations
    financières

    • Prix de vente
      146 000 €
    • Les honoraires d'agence seront intégralement à la charge du vendeur
       
    • Taxe foncière annuelle
      1 090 €
  • Plus de
    détails

    • Nb de salle de bains
      1
    • Nb de salle d'eau
      1
    • Cuisine
      Séparée
    • Mode de chauffage
      Fioul, Bois
    • Type de chauffage
      Radiateur, Cheminée
    • Format de chauffage
      Individuel, Individuel
    • Terrasse
      OUI
    • Murs mitoyens
      1
    • Nombre de garage
      1
    • Cave
      OUI
    • Exposition
      Sud-Ouest
  • la
    copropriété

    • Copropriété
      NON
  • Plus d'informations sur
    le quartier

    • Commerces et santé
    • Loisirs
    • Ecoles
    • Transports
    • Pratique
  • Bilan
    énergétique

    DPE GES

    Logement à consommation énergétique excessive : classe F

    Montant estimé des dépenses annuelles d'énergie pour un usage standard est compris entre 4 870 € et 6 640 € . Prix moyens des énergies indexés sur les années 2021, 2022 et 2023 (abonnements compris).

Ce bien
m'intéresse

Nos outils